Артикул
—
J001A
Производитель
—
Galia
36 640 ₽
В корзину
Купить в 1 клик
Артикул
—
J.022
Производитель
—
Imiola
Страна
—
Польша
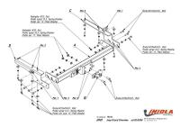
Польский фаркоп Imiola с фланцевым креплением на 2-х болтах (тип шара F), вырез в бампере при установке не нужен, электрика в комплекте, максимально разрешенная масса прицепа 3500 кг.
Описание
20 220 ₽
Подписаться
